One bedroom apartment, Sale, v Bratislave - Nové Mesto
Nowadays, finding a modern, fully equipped apartment in a pleasant environment full of greenery and above-standard area is often difficult. However, we offer you for sale a spacious 2-room apartment with an area of 129.29 m2, with a sunny spacious terrace, which increases the total area by another almost 77 m2, own garage and cellar in the closed area of the Tupého residence near Bratislava's Koliba.
The apartment building was approved in 2005 and is built of quality materials. It is a building with a reinforced concrete supporting system. The perimeter walls are insulated with a contact insulation system 150mm thick + plaster. The entire area is fenced and only residents of the complex have access to it. The entrance for cars is secured by an electric gate with remote control. The advantage of the private area is also the possibility of outdoor parking spaces for visitors.
The apartment has outdoor blinds, a terrace with anti-slip frost-resistant tiles and parking in its own dedicated garage spaces from where you can reach the apartment with dry feet. Another benefit is the lockable cellar directly on the floor next to the apartment as another alternative for storage space.
The apartment itself has been completely renovated. When furnishing, emphasis was placed on sufficient storage space in the form of wardrobe sets, but also on airiness and not crowding the spacious rooms. The advantage is that it is barrier-free, as you can reach the apartment directly from the entrance gate of the apartment building, but the entire apartment is oriented so that you are on the 2nd floor.
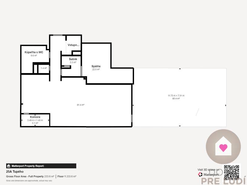
The apartment with an area of 129.29 m2 is designed down to the last detail and consists of:
- A spacious entrance hall with a lockable wardrobe with built-in storage
- A bright living area consisting of a large living room with a dining area, fireplace and air conditioning. From the living room, as well as from the bedroom, there is access to a sunny terrace with seating
- A kitchen area with a modern custom-made kitchen unit with built-in appliances (fridge with freezer, dishwasher, hob, extractor hood, electric oven). An excellent layout solution is a separate utility room with a washing machine, sink and plenty of storage space.
- Spacious bedroom with walk-in wardrobe with shelving unit with plenty of space, desk, designer double bed and the bedroom also has access to the terrace.
- Bathroom with bathtub, deep shower, sink and toilet
- Wardrobe with shelving unit, which can be converted into a separate toilet (there is a complete preparation in the room)
The terrace is partially covered at the entrance area where there is outdoor seating and an awning has been added, which makes sitting more pleasant even during sunny summer evenings. There is also a water, electricity and outdoor air conditioning unit here
The apartment also includes a reserved garage parking space, and a cellar with an area of 3.78 m2.
In the living room and bedroom there is a powerful air conditioning unit installed, which can be controlled via the application.
There are external blinds and nets on the windows. Heating is provided by water underfloor heating with a thermostat located in the living room.
The apartment is sold furnished.
Complete price of the apartment and cellar including commission: €470,000. If you are interested in parking space, additional payment of €30,000..
If you are interested in a viewing, do not hesitate to contact me at +421 940 947 943.
LOCATION
The apartment is located in a closed residential project with a lot of well-maintained greenery and a children's playground. The location under the Bratislava Koliba offers quiet and undisturbed living in one of the most sought-after locations in the capital. The closed complex with a private entrance provides maximum privacy, peace and a high standard of living. Thanks to its location, it offers quick access to the center of Bratislava, as well as immediate proximity to nature.
OUR SERVICES
This property is offered through the company Domy pre ľudí - the intermediary's commission includes fees associated with the transfer of the property - a basic fee for a proposal for entry into the real estate cadastre in the amount of €100, fees for verifying the seller's signatures on contracts, drafting contracts and authorizing contracts by a lawyer, insurance in case of damage up to €1.5 million, mortgage advice and a complete real estate service.
Listing summary
Property location
Tupého, Bratislava - Nové Mesto, Slovakia




