Family house, Sale, v okrese Senec, Nový Svet
We offer for sale a newly built family house in the new and rapidly developing location Nový svet. The house is designed as a modern, single-storey building with a well-thought-out layout and emphasis on comfortable living for the whole family.
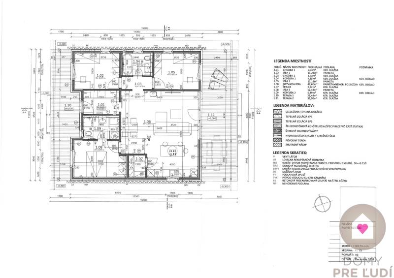
HOUSE LAYOUT:
- number of rooms: 4
- entrance through the covered area in front of the entrance door
- vestibule with entrance to the spacious living room
- all rooms in the house accessible from the living room
- on the north side 2 separate bedrooms + shared bathroom
- on the south side master bedroom with en-suite bathroom
- kitchen with separate pantry
- from the living room entrance to the terrace (30m2) with a covered roof
Property parameters:
usable area: 98.39 m² + 30 m2 terrace
The family house is based on a monolithic reinforced concrete foundation slab. The house is designed as a wooden, grid structure of longitudinal grids and threshold base grids placed on concrete paving slabs. The vertical structures are made of a system of wooden column structure with exterior separate columns to support the roof structure. The house is sheathed with OSB boards + insulation + silicone plaster. The house is covered with a hipped roof with a trapezoidal sheet metal covering + part of the roof is covered with a transparent roof covering (polycarbonate). The windows are plastic with insulating triple glazing. The heating is underfloor, the heating source is a heat pump. The house has preparation for air conditioning and preparation for exterior blinds.
LAND:
The family house is located on a plot of land with an area of 467m2, the plot is flat, IS: public water supply, electricity, septic tank. The sewerage system is in the preparation stage, the land has been prepared for future connection to the sewerage system. The house is currently approved with a septic tank.
Important information:
The house is completed to the holodom stage - approved.
Price: House in the holodom stage = 235,000€
House in the standard stage = 255,000€
LOCATION:
Nový svet is a new residential zone with modern construction and planned infrastructure. The location offers good transport accessibility and quick connection to main roads. In the immediate vicinity there are basic civic amenities and the possibility of further development of services for residents. If you are looking for comfortable and modern housing in a newly built location with good prospects, this house is an ideal choice.
The property is offered through the company Domy pre ľudí, which provides a complete real estate service at a high level.
The commission price includes all fees associated with a safe and smooth transfer of the property, including:
administrative fee for the proposal for entry into the real estate cadastre (100 €)
fees for official verification of signatures on contracts
complete legal service (drafting and authorization of contracts by a lawyer)
liability insurance for damages up to €1,500,000
professional mortgage advice
complete support throughout the entire property purchase process
Your purchase is thus carried out comfortably, safely and without worries.
Listing summary
Property location
Nový Svet, Senec, Slovakia


