Two bedroom apartment, Sale, v Bratislave - Rača, Bratislava - Krasňany
The real estate agency Domy pre ľudí offers for sale a spacious 3-room apartment with a large wardrobe in a popular part of Bratislava - Rača, on Pri vinohradoch street. The property is located on the ground floor of a smaller building with one above-ground floor, which gives it a pleasant feeling of living similar to a family house.
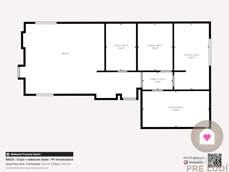
The apartment has a usable area of 99 m² and a great benefit is its own garden of 56 m² along with a spacious terrace of 30 m², which is accessible directly from the living room.
The property is currently in a vacant state, and basic renovations have already been carried out, including waste disposal. The new owner thus gets an ideal opportunity to finish their living space exactly according to their own ideas. The apartment also has project documentation and offers of work for completion. Heating is planned in the form of its own boiler (gas or electric) with water heating.
The apartment includes a share of the attic and a wine cellar, which gives the property a unique character.
Monthly housing costs are approximately €200.
The apartment is registered on the title deed as part of a family house, financing is only possible without a mortgage loan.
The location offers complete civic amenities - there are shops, schools, kindergartens, health centers, services and many opportunities for sports and recreation nearby. Another advantage is good accessibility to the city center and the proximity of the nature of the Little Carpathians.
This property is an ideal choice for those looking for housing with their own garden, plenty of space and the opportunity to complete the interior according to their own taste.
OUR SERVICES
This property is offered through the company Domy pre ľudí - the intermediary's commission includes fees associated with the transfer of the property - a basic fee for a proposal for entry in the real estate cadastre of €100, fees for verifying the sellers' signatures on contracts, drafting contracts and authorizing contracts by a lawyer, insurance in case of damage up to €1.5 million, mortgage advice and a complete real estate service.
Listing summary
Property location
Pri vinohradoch, Bratislava - Krasňany, Bratislava - Rača, Slovakia


