Two bedroom apartment, Sale, v Bratislave - Devínska Nová Ves
*3-room apartment for sale – Bratislava, Devínska Nová Ves (Jána Poničana)**
We offer for sale a furnished 3-room apartment in a sought-after location at the beginning of Devínska Nová Ves, with excellent accessibility to the city center (car and public transport) and complete civic amenities.
The apartment is located on the **7th floor out of 12** in a renovated apartment building (2012).
BASIC INFORMATION:
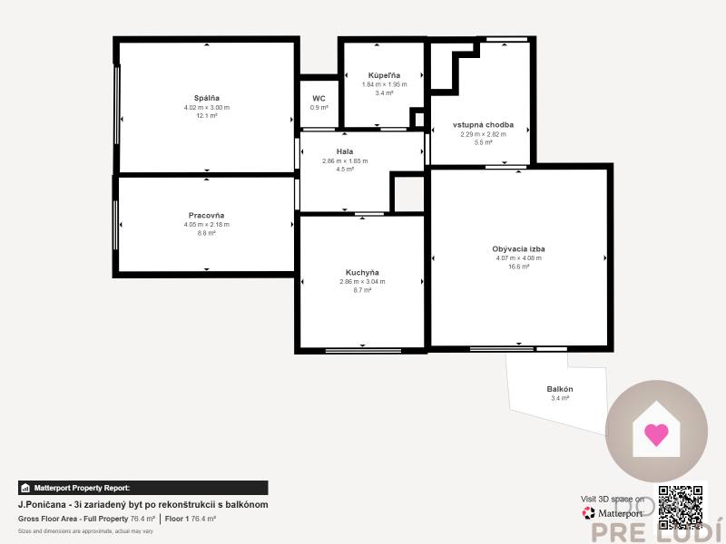
* apartment area: 64 m²
* loggia: 2.3 m²
* cellar: 1.5 m²
* 3 separate (non-passing) rooms
LAYOUT:
* entrance hall with storage space
* living room with exit to loggia
* separate kitchen with dining table
* bedroom
* study / children's room
* bathroom with bathtub
* separate toilet
RECONSTRUCTION:
* 2014: kitchen including appliances, electrical installation, plastic windows
* 2022: custom-made built-in wardrobes (hallway, roller door with mirror)
The apartment is sold furnished (upon agreement).
ADVANTAGES:
* three separate rooms
* suitable for living and investment (rental)
* good layout
* loggia
* cellar
LOCATION:
* quiet part of Devínská Nová Ves
* complete civic amenities (Tesco, Lidl, services, schools, kindergartens)
* close to: Bory Mall, Kaufland, Metro, OBI, Möbelix
* public transport within walking distance
* trouble-free parking around the house (free)
**Price: €229,990 (including commission)**
The price includes a complete real estate service: drafting contracts, legal services, land registry fees, signature verification, mortgage advice and insurance.
**Contact:** +421 908 665 074
Listing summary
Property location
Jána Poničana, Bratislava - Devínska Nová Ves, Slovakia


