Two bedroom apartment, Sale, v Bratislave - Devínska Nová Ves
3-room apartment for sale in Bratislava - Devínska Nová Ves
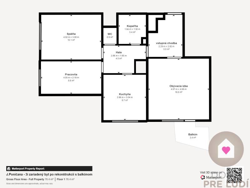
In an exclusive representation, we offer for sale a furnished 3-room apartment on Jána Poničana street in a sought-after area at the beginning of Devínska Nová Ves with full amenities and excellent accessibility to the city by car or bus. The apartment is located on the 7th floor of 12.
The apartment itself was renovated in 2014 when the entire kitchen with appliances and new electrical installation was completely replaced, plastic windows and a wardrobe for jackets, shoes and a roller door with a custom-made mirror were added in the entrance hall in 2022. The apartment building was renovated in 2012.
The apartment has an area of 64 m2 and has a spacious hallway with sufficient storage space. From the hallway there is an entrance to the living room with access to the loggia of 2.3 m2 and a pleasant sitting area.
From the smaller hallway there are separate entrances to the cozy bedroom and study, entrance to the kitchen with dining table, entrance to the toilet and bathroom with bathtub.
A great advantage of the apartment are three impassable rooms, which makes the apartment attractive.
The apartment also includes a cellar of 1.5 m2.
Thanks to its unique location, it is an ideal solution as a property for young couples, or an excellent investment for rent thanks to three impassable rooms.
The apartment is sold fully furnished.
Complete price including commission: €240,000.
If you are interested in a viewing, do not hesitate to contact us at +421 908 665 074.
The apartment is located in a quiet, peaceful location that provides full civic amenities, with excellent infrastructure and quick access to groceries (Tesco, Lidl), in close proximity there are many shops, pharmacies, fitness centers, banks, restaurants, cafes, public transport stops, schools, kindergartens, playgrounds, etc. good access to Borry Mall, Kaufland, Metro, Mobelix, Obi and other shops.
Parking is possible in front of the apartment building, as well as along it, as there is a free outdoor parking lot.
This property is offered through the company Domy pre ľudí - the intermediary's commission includes fees associated with the transfer of the property - a basic fee for a proposal for entry in the real estate register in the amount of €100, fees for verifying the sellers' signatures on contracts, drafting contracts and authorizing contracts by a lawyer, insurance in case of damage up to €1.5 million, mortgage advice and complete real estate service.
Listing summary
Property location
Jána Poničana, Bratislava - Devínska Nová Ves, Slovakia


