Family house, Sale, v okrese Malacky, Malé Leváre
If you are looking for housing in a quiet environment in a quiet street, we have a great opportunity for you.
We offer for sale newly built detached, low-energy ceramic family house with a large plot, garage and pleasant terrace in the village of Malé Leváre only 10 min. by car from Malacie. The family house was approved in 2024, it combines modern housing, low operating costs and, if interested, the possibility of purchasing a generous plot with investment potential for the future (arable land with an area of 1,896 m² (approx. 12 × 154 m), located right behind the fence of the plot with access from the other side - investment reserve)
The house has a separate flat plot of 533 m2, which is completely fenced and 2 parking spaces for electricity are created. gate plus lockable garage for another car, also serving as storage space.
LAYOUT:
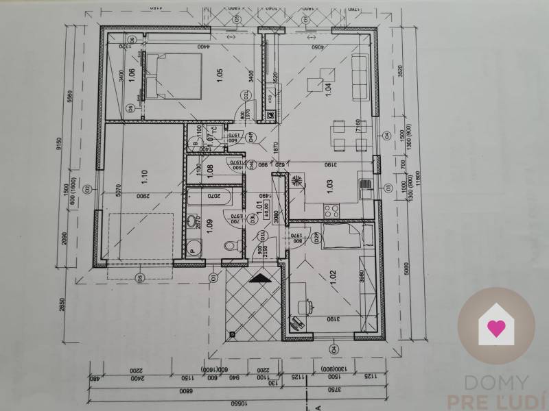
The floor area of the house is 90.29 m2 and consists of:
- entrance hall with an area of 8.03 m2
- spacious living room connected to a fully equipped kitchen area of 26.09 m2 (custom-made kitchen with built-in appliances (dishwasher, electric oven, hob, extractor hood) and a free-standing American fridge with freezer. The living room and bedroom lead out onto a sunny covered terrace with an area of 13.75 m2. There is also preparation for a fireplace.
- an unconnected bedroom with an area of 14.96 m2 with a double bed, bedside tables, TV and a practical walk-in wardrobe with plenty of storage space that increases it by 4.48m2
- separate room with an area of 12.7 m2
- pantry 2.27m2
- bathroom (5.52 m2) with a large shower, sink, washing machine and toilet
- technical room (1.54m2) with a Buderus heat pump, which provides underfloor heating throughout the house + the possibility of cooling in the summer months.
The rooms have laminate flooring and ceramic tiles in the hallway, hallway, kitchen, bathroom, pantry and garage.
A huge advantage is the separate garage with a radiator in which there is also attic storage space.
SPECIFICATION
* built-up area: 133 m²
* construction: Ceramic Houses
* insulation: mineral wool
* roof: sheet metal
* plastic windows + electric external blinds
* energy certificate: A0 / B – low-energy house
* electricity 230 V / 400 V
* municipal water and sewage
* rainwater retention tank 6 m³ with pump
* plot completely fenced (concrete blocks)
* entrance through gate and electric gate
* at the end of the plot double-wing gate separating arable land
DOCUMENTATION
✔ building approval decision
✔ project documentation
✔ title deed – 1 owner, no title deeds
✔ energy certificate
✔ inspections: electrical installation, chimney
MONTHLY COSTS (2 people): approx. €115
* electricity: €50
* water: €32
* internet (Slovanet): €20
* garbage: approx. 11 €
PRICE
Complete price including commission: 250,000€. In case of interest in purchasing arable land behind the fenced plot of the family house, €24,900 will be added to the price.
The house is freehold, without any restrictions, ready for the new owner to move in immediately. Viewings are possible at any time: +421 940 947 943.
LOCATION + CIVIC AMENITIES
* municipal office, cultural center
* kindergarten, primary school (1st grade)
* post office, grocery store, pharmacy
* secondary school – Veľké Leváre
* Rudava lake – swimming, sports, fishing
* lavender field
* EuroVelo cycle route – Železná opona
* pine forests and nature trails
AVAILABILITY
* Malacky: 10 min
* Bratislava: 35 min
This property is offered through the company Domy pre ľudí - the intermediary's commission includes fees associated with the transfer of the property - a basic fee for a proposal for entry into the real estate cadastre in the amount of €100, fees for verifying the sellers' signatures on contracts, drafting contracts and authorizing contracts by a lawyer, insurance in case of damage up to €1.5 million, mortgage advice and complete real estate service. mortgage advice and complete real estate service.
Listing summary
Property location
Malé Leváre, Malé Leváre, Malacky, Slovakia




