One bedroom apartment, Sale, v Bratislave - Dúbravka
We are exclusively offering for sale an excellently designed and renovated and almost completely furnished 2-room apartment with a separate bedroom and a cellar in a great location with full amenities on Drobného Street in a great part of Dúbravka with complete amenities. The apartment with a total area of 50.45 m2 + cellar 1.09 m2 is located on the 11th floor out of 11 in a renovated apartment building. There are 6 apartments on the floor.
During the renovation of the apartment building, the following were reconstructed: facade (including insulation), roof, steps, elevators, common areas, mailboxes, windows on the staircase and entrance.
The apartment underwent a complete reconstruction in 2016 when the electrical installation, plumbing installations were replaced, the living room was connected to the kitchen by eliminating the partition, security and interior doors, floors, kitchen, bathroom and toilet including tiles and sanitary ware and all furniture. It is oriented to the northeast, which guarantees all-day light and a pleasant view from the windows. There are insect screens and blinds on the windows.
Heating is provided by hot-water central heating via radiators with thermostatic heads.
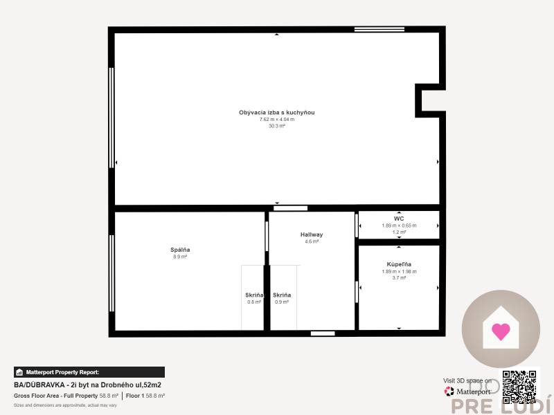
LAYOUT:
- entrance hall with wardrobe with plenty of storage space, shoe rack and bench - 5.7 m2
- spacious living room connected to the kitchen with an area of 30.5 m2. The kitchen is equipped with a kitchen unit with a built-in gas hob, electric oven, dishwasher, microwave, extractor hood, freestanding fridge with freezer, dining table with 4 chairs and a cupboard. The living room is furnished with an L-shaped sofa, coffee table, TV cabinet, cupboard, work table and shelves. The owner takes the sofa, coffee table and work table.
- separate bedroom with double bed, wardrobe and bedside table - 9.97 m2
- separate bathroom with bathtub, washbasin, vanity unit, cosmetic cabinet, mirror and washing machine - 2.96 m2
- separate toilet - 1.09 m2
The apartment has a cellar of 1.09 m2 located on the -1 floor.
Management fees are 195 € + advance payments for electricity of 35 € and gas of 9 € per month. The apartment has optical internet and TV programs.
If you are interested in a viewing, do not hesitate to contact us at +421 940 947 943.
The apartment is freehold, ready for a new owner to move in.
Thanks to its great location, it is also an excellent investment with a quick return.
Complete price including commission: 215,000 €.
LOCATION AND PARKING
The apartment is located in a peaceful and quiet location with lots of greenery and the surroundings are full of civic amenities - tram and bus stops, shops (Billa, Lidl, Tesco), Saratov shopping center, restaurants, health center, cafes, pharmacy, House of Culture, kindergartens, schools, Dúbrawa shopping center, quick access to the city, Bory Mall and connection to the highway bypass. Parking is easy right next to the apartment building.
This property is offered through the company Domy pre ľudí - the intermediary's commission includes fees associated with the transfer of the property - a basic fee for a proposal for entry into the real estate cadastre in the amount of €100, fees for verifying the sellers' signatures on contracts, drafting contracts and authorizing contracts by a lawyer, insurance in case of damage up to €1.5 million, mortgage advice and complete real estate service. mortgage advice and complete real estate service.
Listing summary
Property location
Bratislava - Dúbravka, Slovakia




